DANCE HALL新世紀(読み方:だんすほーるしんせいき)は、東京都の鶯谷(読み方:うぐいすだに)にあるダンスフロアです。アンティーク調のレトロな雰囲気が、視覚的にも楽しませてくれます。女性講師や男性講師によるダンスレッスン教室、ライブイベント、結婚式パーティも行われている会場です。かの有名な「Shall we ダンス?」の撮影現場です。


年金婆さんと爺さん踊り場ですね。高級感は無し。ガラの悪い爺さんに注意です!安く楽しむならOK!!
📭アクセス(住所)
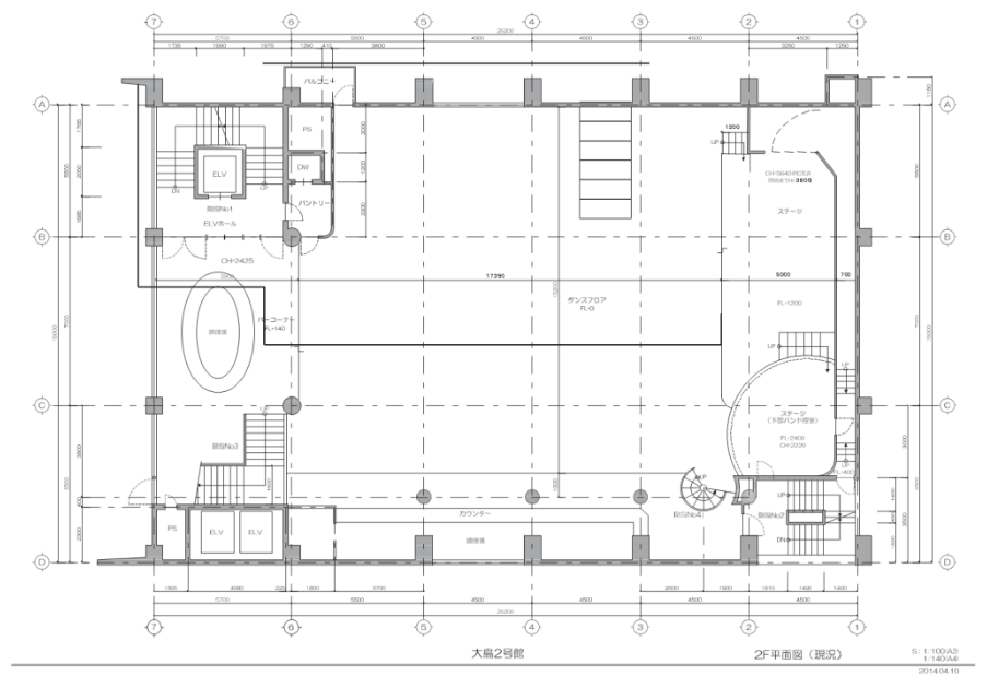
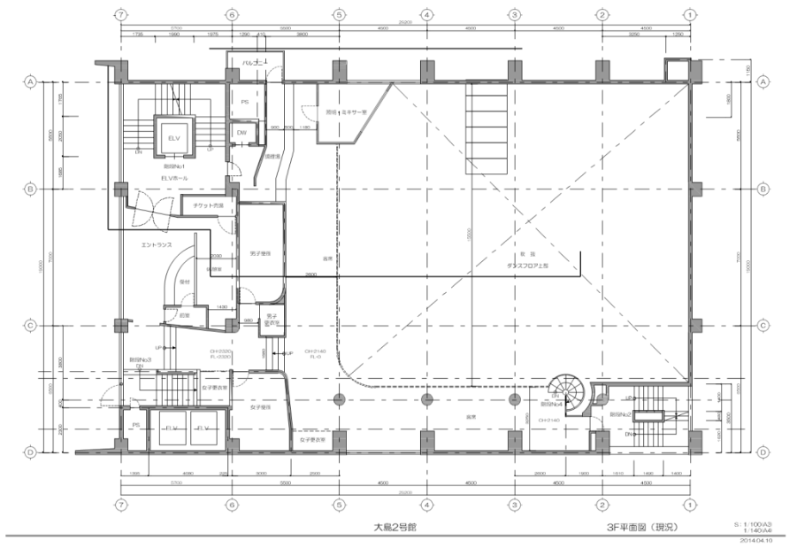
〒110-0003 東京都台東区根岸1丁目1−14 第二大島ビル 1階
※住所は1階になっていますが、受付はエレベーターで上がった3階、ライブフロアはその下2階になります。

最寄り駅 「鶯谷駅」南口から陸橋の階段を下りて徒歩1分👣
※東京キネマ倶楽部と同じ建物です。

ダンスホール新世紀の外観👓
🏪近くのお店 2軒隣にコンビニがあります。
🚙無料駐車場 なし(『駐車場コインパーキング検索』からお探し下さい。)
🔐コインロッカー なし
👜クローク なし
🚬喫煙所 なし
🚻トイレ あり
開場前トイレ 陸橋のトンネルをくぐった先に、台東区立鶯谷公園があります。
🍹入場ドリンク代 なし~600円程度(別途入場料金)
💺キャパシティ(最大収容人数)
下階 メインフロア スタンディング500、シッティング350
上階 ソファー&テーブルで50席
📷座席からの見え方



◆オールスタンディングライブ形式




◆着席スタイルにも対応 座席レイアウトは自由自在。








⏰イベントスケジュールとチケット情報🎫
