LIVEHOUSE Fairy-Tales OSAKA(読み方:らいぶはうす ふぇありー てーるず おおさか)は、大阪市にある日本橋19ビル 2階のライブハウスです。3階の「サウンドノート大阪」とは姉妹店で受付やトイレ喫煙所など共同で使用され、サーキットイベントも行えます。
名古屋にも「フェアリーテールズ名古屋」がありますので、お間違え無いようにご注意ください!
「フェアリーテールズ」とは英語で「fairy tale」と訳されます。これは、妖精や魔法が登場するような架空の物語を指し、比喩的に「現実離れした作り話」や「夢のような出来事」といった意味でも使われます。
📭アクセス(住所)
〒556-0005 大阪府大阪市浪速区日本橋5-9-16 日本橋19ビル 2F
電話:070-8338-4166
最寄り駅👣 「なんば駅」から徒歩7分
フェアリーテールズ大阪の外観👓


🏪近くのお店 駅前なのでお店がたくさんあります。
🚙駐車場 なし(『周辺コインパーキング検索』からお探し下さい。)
🔐コインロッカー なし
👜クローク なし
🚬喫煙所 あり
🚻トイレ きれいです。
開場前トイレ なんばパークスに公衆便所があります。

🍹入場ドリンク代 600円程度(別途チケット)
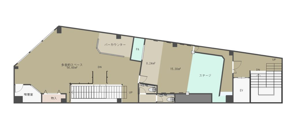
💺キャパシティ(最大収容人数)
キャパシティ80人(多目的スペースは2階・3階共用となります)
フロアには段差があって見やすくなっています。
📷座席からの見え方





⏰イベントスケジュールとチケット情報🎫
