Gメッセ群馬(読み方:じーめっせぐんま)は、群馬県に位置する多目的イベントホールです。この施設は、コンサート、展示会、会議、スポーツイベントなど、さまざまな用途に対応できるように設計されています。Gメッセ群馬は、広いスペースと最新の設備を備えており、訪れる人々にとって快適な環境を提供します。また、アクセスも高崎駅から徒歩圏と良好で、公共交通機関や自動車での訪問が容易です。群馬県内外から多くのイベントが行われ、地域の文化や経済の発展にも寄与しています。周囲には観光名所も多く、イベント参加者にとって魅力的な訪問先となっています。
📭アクセス(住所)
TEL: 027-322-2100
FAX: 027-384-8018
Email: info@g-messe-gunma.jp
〒370-0044 群馬県高崎市岩押町12番24号

最寄り駅👣 「高崎駅」東口から徒歩15分

Gメッセ群馬の外観👓

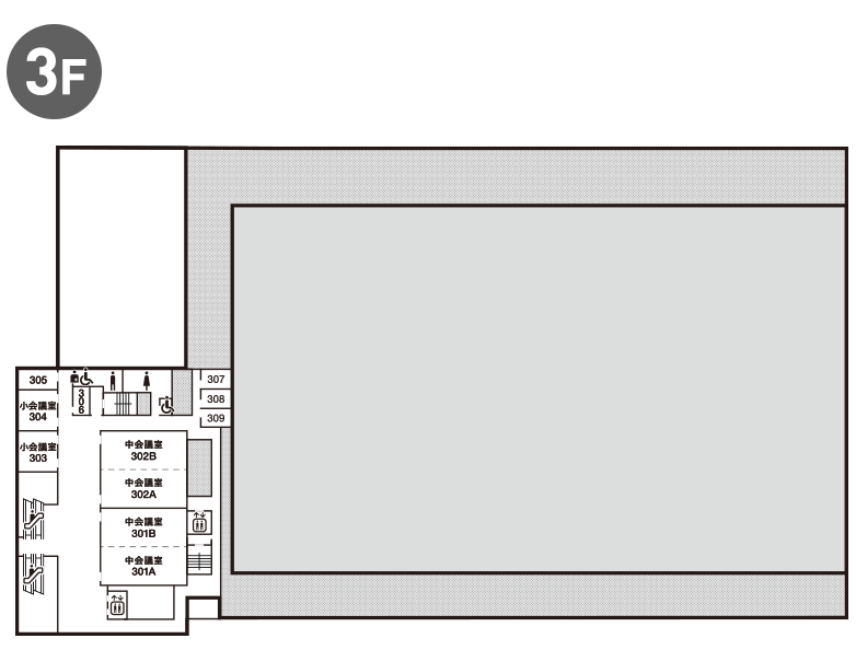
フロアガイド



🏪近くのお店 北側の大通りにコンビニエンスストアがあります。
🚙駐車場

駐車場から、Gメッセ群馬までは3階連絡通路をご利用ください。
(立体駐車場3階と、Gメッセ群馬2階が連絡通路でつながっています。)駐車料金
1時間 100円
当日24時まで最大料金 500円駐車台数
1,918台(立体駐車場1,418台、平面駐車場500台)
🔐コインロッカー
コインロッカーは全館で300台設置しています。料金:大型300円
小型200円
※使用は当日限りです。
👜クローク なし
🚬喫煙所 Gメッセ群馬1階屋外
🚻トイレ あり
開場前トイレ 北側の大通りにコンビニエンスストアがあり、トイレが借りられますが混んでいます。
🍹入場ドリンク代 なし(別途チケット)
館内各所に自動販売機コーナーを設置しています。
災害などの緊急時に、無料で飲料をご提供可能な災害ベンダーを備えています。
💺キャパシティ(最大収容人数)
展示ホール
立 席約10,000~最大13,000人(全面利用)
※季節・諸条件により異なります。
約3,800人(1/3利用)
スクール約2,350人(1/3利用)
シアター約10,000人(全面利用)、約2,500人(1/3利用)
展示会、学会、コンサート(10,000人規模)、ファミリー向けのイベントなどの開催が可能
- 展示ホールは無柱であり、可動式の間仕切りにより3つの会場に分割して利用できます。



📝展示ホールの座席表例



メインホール
全面利用シアター1,000人、スクール810人、立食パーティー 約1,000人
2/3利用シアター700人、スクール500人、立食パーティー 約700人
1/3利用シアター350人、スクール255人、立食パーティー 約350人
学会や団体の全国大会をはじめ、展示会、講演会やレセプションの開催など幅広い利用が可能
- 可動式の間仕切りにより3つの会場に分割して利用できます。




メインホールの座席表例


会議室

交流室

屋外展示場
20,000㎡超(舗装部分約13,000㎡、未舗装部分約9,000㎡)
屋外ならではの開放感あふれるイベントや展示会などの開催が可能です。



⏰イベントスケジュールとチケット情報🎫
